Aktuelles aus der Stadt Rain
Infoabend zur Kommunalen Wärmeplanung in Rain am Lech am 23. Februar 2026
Veranstaltung im Bayertor
Gebühren zur Beantragung eines Personalausweises steigen bundesweit ab 07. Februar 2026
27,60 Euro für antragstellende Personen unter 24 Jahren. Weitere Informationen zum Personalausweis: Personalausweisportal - Gebühren und Gültigkeit.
Probe-Stimmzettel zur Stadtrats-/Kreistagswahl am 08. März 2026
Wahlbekanntmachung für die Wahl des Stadtrats, des ersten Bürgermeisters, des Kreistags und der Landrätin / des Landrats am 08.03.2026
für die Wahl
des Stadtrats, des ersten Bürgermeisters, des Kreistags und der Landrätin / des Landrats
am 08.03.2026 1. Die Abstimmung dauert von 8 Uhr bis 18 Uhr. 2. Das Stimmrecht kann folgendermaßen ausgeübt werden: 2.1 Im Abstimmungsraum:
2.1.1 Die Gemeinde ist in 6 allgemeine Stimmbezirke eingeteilt.
In den Wahlbenachrichtigungen, die den Wahlberechtigten bis spätestens 15.02.2026 (21. Tag vor dem Wahltag) übersandt worden sind, sind der Stimmbezirk und der Abstimmungsraum angegeben, in dem die Stimmberechtigten abstimmen können. Sie enthalten einen Hinweis, ob der Abstimmungsraum barrierefrei ist. 2.1.2 Die Gemeinde ist in Sonderstimmbezirke eingeteilt, und zwar: 2.1.3 Stimmberechtigte können, wenn sie keinen Wahlschein besitzen, nur in dem Abstimmungsraum des Stimmbezirks abstimmen, in dessen Wählerverzeichnis sie eingetragen sind. 2.1.4 Wer einen Wahlschein besitzt, kann das Stimmrecht ausüben a) bei Gemeindewahlen durch Stimmabgabe in jedem Abstimmungsraum der Gemeinde, die den Wahlschein ausgestellt hat, b) bei Landkreiswahlen durch Stimmabgabe in jedem Abstimmungsraum innerhalb des Landkreises; gilt der Wahlschein zugleich für Gemeindewahlen, kann die Stimmabgabe hierfür nur in dieser Gemeinde erfolgen. 2.1.5 Die Abstimmenden haben ihre Wahlbenachrichtigung oder ihren Wahlschein und ihren Personalausweis, ausländische Unionsbürgerinnen/Unionsbürger einen Identitätsausweis, oder ihren Reisepass zur Abstimmung mitzubringen. 2.1.6 Die Stimmzettel werden den Abstimmenden beim Betreten des Abstimmungsraums ausgehändigt. Sie müssen von den Stimmberechtigten allein in einer Wahlkabine des Abstimmungsraums gekennzeichnet werden. 2.1.7 Die Durchführung der Abstimmung und die Feststellung des Abstimmungsergebnisses sind öffentlich. Jedermann hat Zutritt, soweit das ohne Beeinträchtigung der Abstimmung möglich ist. 2.1.8 Die Wahlbenachrichtigung ist bei Bürgermeister- und Landratswahlen aufzubewahren, da sie für eine etwaige Stichwahl benötigt wird. 2.2 Durch Briefwahl:
2.2.1 Wer durch Briefwahl wählen will, muss dies bei der Gemeinde beantragen und erhält dann folgende Unterlagen: a) Einen Stimmzettel für jede oben bezeichnete Wahl, b) einen Stimmzettelumschlag für alle Stimmzettel, c) einen hellroten Wahlbriefumschlag für den Wahlschein und den Stimmzettelumschlag mit der Anschrift der Behörde, an die der Wahlbrief zu übersenden ist, d) ein Merkblatt für die Briefwahl. Nähere Hinweise darüber, wie die Briefwahl auszuüben ist, ergeben sich aus dem Merkblatt für die Briefwahl. 2.2.2 Bei der Briefwahl sorgen die Stimmberechtigten dafür, dass der Wahlbrief mit den Stimmzetteln und dem Wahlschein am Wahltag bis zum Ablauf der Abstimmungszeit bei der auf dem Wahlbriefumschlag angegebenen Behörde eingeht. 3. Die Briefwahlvorstände treten zur Ermittlung des Briefwahlergebnisses um 15:15 Uhr Uhr im Schulzentrum Rain, Fasanenweg 6, 86641 Rain (Erdgeschoss, Zimmer A.0.09, A.0.11, A.0.14, A.0.15, C.0.40, C.0.52, C.0.59., C 0.69, C.0.74) zusammen. 4. Grundsätze für die Kennzeichnung der Stimmzettel: Gewählt wird mit amtlich hergestellten Stimmzetteln. Die Stimmzettelmuster liegen während der allgemeinen Dienststunden in der Gemeindeverwaltung zur Einsichtnahme bereit. Aus den Stimmzetteln ergibt sich, wie viele Stimmen die Stimmberechtigten haben. Gegebenenfalls aufgedruckte Strichcodes dienen ausschließlich der Erleichterung der Stimmenauszählung. 4.1 Wahl des Gemeinderats und des Kreistags: 4.1.1 Sofern die Stimmzettel mehrere Wahlvorschläge enthalten, gelten die Grundsätze der Verhältniswahl. Die Stimmzettelmuster liegen während der allgemeinen Dienststunden in der Gemeindeverwaltung zur Einsichtnahme bereit. Aus den Stimmzetteln ergibt sich, wie viele Stimmen die Stimmberechtigten haben. Es können nur die auf den amtlichen Stimmzetteln vorgedruckten Bewerberinnen und Bewerber gewählt werden. Die Stimmberechtigten können einen Wahlvorschlag unverändert annehmen, indem sie in der Kopfleiste den Kreis vor dem Kennwort des Wahlvorschlags kennzeichnen. Sollen einzelne Bewerberinnen und Bewerber Stimmen erhalten, wird das Viereck vor den Bewerberinnen und Bewerbern gekennzeichnet. Die Stimmberechtigten können innerhalb der ihnen zustehenden Stimmenzahl einzelnen Bewerberinnen und Bewerbern bis zu drei Stimmen geben, wobei auch mehrfach aufgeführte Bewerberinnen und Bewerber nicht mehr als drei Stimmen erhalten dürfen. Die Namen vorgedruckter Bewerberinnen und Bewerber können gestrichen werden. Die übrigen Bewerberinnen und Bewerber sind dann gewählt, wenn der Wahlvorschlag in der Kopfleiste gekennzeichnet wurde. Die Stimmberechtigten können ihre Stimmen innerhalb der ihnen zustehenden Stimmenzahl Bewerberinnen und Bewerbern aus verschiedenen Wahlvorschlägen geben. 4.1.2 Sofern die Stimmzettel keinen oder nur einen Wahlvorschlag enthalten, gelten die Grundsätze der Mehrheitswahl. Die Stimmzettelmuster liegen während der allgemeinen Dienststunden in der Gemeindeverwaltung zur Einsichtnahme bereit. Aus den Stimmzetteln ergibt sich, wie viele Stimmen die Stimmberechtigten haben.
Das sind so viele Stimmen, wie Gemeinderatsmitglieder oder Kreisrätinnen und Kreisräte zu wählen sind. Die Stimmberechtigten können innerhalb der ihnen zustehenden Stimmenzahl einzelnen Bewerberinnen und Bewerbern bis zu drei Stimmen geben, wobei auch mehrfach aufgeführte Bewerberinnen und Bewerber nicht mehr als drei Stimmen erhalten dürfen. a) Wenn der Stimmzettel nur einen Wahlvorschlag enthält, können die Stimmberechtigten die auf dem Stimmzettel vorgedruckten Bewerberinnen und Bewerber dadurch wählen, dass sie den Wahlvorschlag oder den Namen der Bewerberinnen und Bewerber in eindeutig bezeichnender Weise kennzeichnen. Sie können vorgedruckte Bewerberinnen und Bewerber streichen; in diesem Fall sind die übrigen Bewerberinnen und Bewerber dann gewählt, wenn der Wahlvorschlag in der Kopfleiste gekennzeichnet wurde. Die Stimmberechtigten können Stimmen an andere wählbare Personen vergeben, indem sie diese in eindeutig bezeichnender Weise auf dem Stimmzettel handschriftlich hinzufügen. b) Wenn der Stimmzettel keinen Wahlvorschlag enthält, vergeben die Stimmberechtigten ihre Stimmen dadurch, dass sie wählbare Personen in eindeutig bezeichnender Weise auf dem Stimmzettel handschriftlich eintragen. Gewählt sind die Personen in der Reihenfolge der Stimmenzahlen. 4.2 Wahl der ersten Bürgermeisterin und des ersten Bürgermeisters sowie der Landrätin und des Landrats: Jede stimmberechtigte Person hat eine Stimme. Die Stimmzettelmuster liegen während der allgemeinen Dienststunden in der Gemeindeverwaltung zur Einsichtnahme bereit. 4.3 Die gekennzeichneten Stimmzettel sind mehrfach so zu falten, dass der Inhalt verdeckt ist. 5. Jede wahlberechtigte Person kann ihr Wahlrecht nur einmal und nur persönlich ausüben. Eine Ausübung des Wahlrechts durch einen Vertreter anstelle der wahlberechtigten Person ist unzulässig (Art. 3 Abs. 4 Satz 2 des Gemeinde- und Landkreiswahlgesetzes). Eine wahlberechtigte Person, der des Lesens unkundig oder wegen einer Behinderung an der Abgabe der Stimme gehindert ist, kann sich hierzu der Hilfe einer anderen Person bedienen. Die Hilfeleistung ist auf technische Hilfe bei der Kundgabe einer von der wahlberechtigten Person selbst getroffenen und geäußerten Wahlentscheidung beschränkt. Unzulässig ist eine Hilfeleistung, die unter missbräuchlicher Einflussnahme erfolgt, die selbstbestimmte Willensbildung oder Entscheidung der wahlberechtigten Person ersetzt oder verändert oder wenn ein Interessenkonflikt der Hilfsperson besteht (Art. 3 Abs. 5 des Gemeinde- und Landkreiswahlgesetzes). Wer unbefugt wählt oder sonst ein unrichtiges Ergebnis einer Wahl herbeiführt oder das Ergebnis verfälscht, wird mit Freiheitsstrafe bis zu fünf Jahren oder mit Geldstrafe bestraft. Unbefugt wählt auch, wer im Rahmen zulässiger Assistenz entgegen der Wahlentscheidung des Wahlberechtigten oder ohne eine geäußerte Wahlentscheidung des Wahlberechtigten eine Stimme abgibt. Der Versuch ist strafbar (§ 107a Abs. 1 und 3 StGB).
16.02.2026 gez. Haunstetter
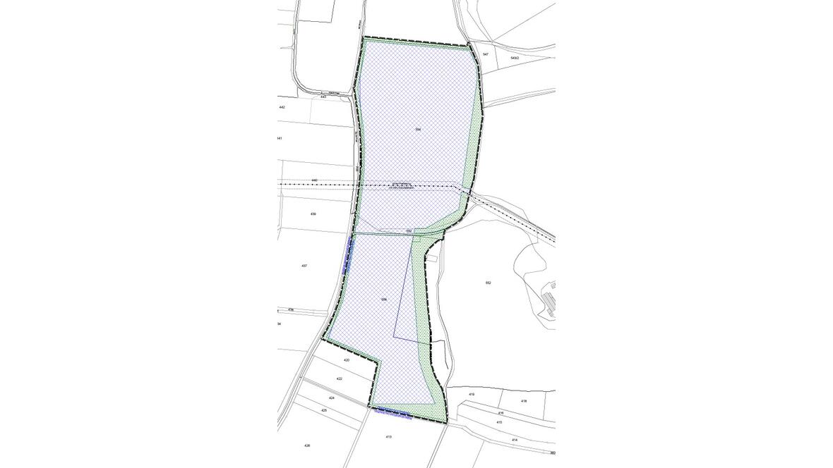
Einbeziehungssatzung "Oberpeiching-Ost" 1. Änderung und Erweiterung Bekanntmachung Aufstellungsbeschluss; Öffentliche Auslegung gem. § 3 Abs. 2 BauGB
Bekanntmachung über das Recht auf Einsicht in das Wählerverzeichnis und die Erteilung von Wahlscheinen
Kommunalwahl 2026
Neue Standortbroschüre für Unternehmen, Investoren, Fachkräfte sowie Neubürger*Innen
Bekanntmachung zugelassener Wahlvorschläge Landrätin bzw. Landrat
Kommunalwahl 2026 - Wahl des Landrats
Bekanntmachung zugelassener Wahlvorschläge Kreistag
Kommunalwahl 2026 - Wahl des Kreistags
BEKANNTMACHUNG Planfeststellungsverfahren B16: Genderkingen - Rain Ost
(Bau-km 0+000 bis Bau-km 2+508).
Stellenangebote
Veranstaltungen
Di.
24.02.26
16:00
-
16:30
Stadtbücherei Rain
Stadtbücherei Rain
Vortrag/Lesung
Vorlesen für Kinder von 3-5 Jahren
Di.
24.02.26
19:00
-
21:00
Mi.
25.02.26
19:00
-
21:00
Gasthaus & Hotel "Zum Boarn"
Bund Naturschutz in Bayern, Ortsgruppe Rain und Umgebung
Offener Stammtisch für alle, die Interesse haben, sich für die Natur zu engagieren.
Öffnungszeiten Rathaus
| Wochentage / Monate | Öffnungszeiten / Hinweise |
|---|---|
| Montag |
08:00 - 12:30 Uhr
14:00 - 16:00 Uhr |
| Dienstag |
08:00 - 12:30 Uhr
14:00 - 16:00 Uhr Bürgerservice: Nach Online-Terminvereinbarung |
| Mittwoch | 08:00 - 12:30 Uhr |
| Donnerstag |
08:00 - 12:30 Uhr
14:00 - 16:00 Uhr Bürgeramt zusätzlich bis 18:00 Uhr |
| Freitag | 08:00 - 12:30 Uhr |
Hallenbad
| Tel: | |
| E-Mail: | hallenbad@rain.de |
| Wochentage / Monate | Öffnungszeiten / Hinweise |
|---|---|
| Montag |
16:00 - 19:00 Uhr
19:00 - 21:00 Uhr Frauenschwimmen |
| Dienstag | 16:00 - 21:00 Uhr |
| Mittwoch |
06:30 - 07:30 Uhr
Frühschwimmer 16:00 - 21:00 Uhr |
| Donnerstag |
15:00 - 16:00 Uhr
Seniorenschwimmen 16:00 - 21:00 Uhr |
| Freitag | 16:00 - 21:00 Uhr |
| Samstag | 13:00 - 18:00 Uhr |
| Sonntag | 08:00 - 12:00 Uhr |
Öffnungszeiten Sauna:
| Wochentage / Monate | Öffnungszeiten / Hinweise |
|---|---|
| Montag |
15:00 - 21:00 Uhr
Herrensauna |
| Dienstag |
15:00 - 21:00 Uhr
Damensauna |
| Mittwoch |
15:00 - 21:00 Uhr
Gemischte Sauna |
| Donnerstag |
15:00 - 21:00 Uhr
Damensauna |
| Freitag |
12:30 - 21:00 Uhr
Herrensauna |
Okt.
- Apr.
| Wochentage / Monate | Öffnungszeiten / Hinweise |
|---|---|
| Samstag |
12:30 - 18:00 Uhr
Gemischte Sauna (Okt.-Apr.) |
Stadtbücherei
| Tel: | 09090 949696-0 |
| E-Mail: | buecherei@rain.de |
| Web: | www.stadtbuecherei-rain.de |
| Wochentage / Monate | Öffnungszeiten / Hinweise |
|---|---|
| Dienstag |
10:00 - 12:00 Uhr
15:00 - 18:00 Uhr |
| Donnerstag |
10:00 - 12:00 Uhr
15:00 - 18:00 Uhr |
| Freitag | 15:00 - 18:00 Uhr |
Kitas
Kita "Bei der Klause"
| Tel: | 09090 94965 10 |
| E-Mail: | kita-klause@rain.de |
Kita "Am Schloss"
| Tel: | 09090 962460 |
| E-Mail: | kita-schloss@rain.de |
Kita Bayerdilling
| Tel: | 09090 3462 |
| E-Mail: | kita-bayerdilling@rain.de |
Kita Gempfing
| Tel: | 08432 535 |
| E-Mail: | kita-gempfing@rain.de |
Kita "Am Holunderweg"
| Tel: | 09090 50133-10 |
| E-Mail: | kita-holunderweg@rain.de |
Waldkindergarten "Lechfasane"
| Tel: | +49 173 2139678 |
| E-Mail: | sandra.fischer@brk.de |
Kita "Am Rathaus"
| Tel: | 09090 94963 20 (Am Rathaus) 09090 92253 83 (Außenstelle Münchner Str.) |
| E-Mail: | kita-amrathaus@rain.de |
Städtische Betriebe
Städtische Musikschule
| Tel: | 09090 921850 (mit Anruf-Beantworter) |
| E-Mail: | musikschule@rain.de |
VHS Rain
| Tel: | 09090 3202 |
| E-Mail: | wolfgang.janson@t-online.de |
Bauhof
| Tel: | 09090 922900 |
| E-Mail: | bauhof@rain.de |
Wasserwerk
| Tel: | 09090 921680 (Rufbereitschaft Tag u. Nacht) |
| E-Mail: | wasserwerk@rain.de |
Klärwerk
| Tel: | 09090 922920 (Rufbereitschaft Tag und Nacht) |
| E-Mail: | klaerwerk@rain.de |